Nova Scotia, Canada
Pressure System Integrity, Pressure Vessels, Vacuum Chambers, Pressure Systems (selected projects)
|
|
Design and analysis of Sequoia Detector and Sample Vessels for the Spallation Neutron Source (SNS) Project (SNS) Oak Ridge National Laboratory (ORNL), Oak Ridge, Tennessee. Design to ASME Section VIII Div 1 and to ASME Section VIII Div 2 for fatigue. Seismic analysis and design to meet PC-2 requirements. The Sequoia Detector Vessel is considered to be one of the largest vacuum chambers ever built in North America. Sequoia Starts-up Oct 7, 2008: Download ORNL Notice and Info on Sequoia PDF Business Excellence Magazine: Download Feature Article on Grantec and Sequoia PDF The Engineer Magazine: Download Feature Article on Sequoia Detector Vessel PDF |
|
|
PC-3 Seismic Analysis of Sequoia Detector and Sample Vessels for the Spallation Neutron Source (SNS) Project (SNS), Oak Ridge National Laboratory (ORNL), Oak Ridge, Tennessee. PC-3 seismic analysis performed in accordance with DOE-STD-1020-2002 and independently peer reviewed. The Sequoia Detector Vessel is considered to be one of the largest vacuum chambers ever built in North America. Sequoia Starts-up Oct 7, 2008: Download ORNL Notice and Info on Sequoia PDF Business Excellence Magazine: Download Feature Article on Grantec and Sequoia PDF The Engineer Magazine: Download Feature Article on Sequoia Detector Vessel PDF |
|
|
Next Generation Canadarm (NGC) Project : Prototype Satellite Refueling System. Client: MacDonald Dettwiler Associates (MDA) Independent design review of new Client and Servicer pressure vessels for a Prototype Satellite Refueling System. Vessels were fabricated in Europe under the Pressure Equipment Directives (PED). Grantec performed complete ASME Code calculations, transport load calculations, seismic calculations, welding assessment, finite element analysis to confirm ASME requirements were met for attachments and non-standard features. Comprehensive report prepared for submission to TSSA Ontario. Vessels subsequently approved by TSSA and registered with Canadian Registration Numbers (CRN's). The end client for this system is the Canadian Space Agency (CSA). |
![]() |
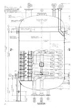
Bunker-C Shell & Tube Heat Exchanger, Complete Heat Transfer Design, Pressure Design to ASME Section VIII Division 1 (TEMA also considered), Solid model and fabrication drawings. |
|
|
Bunker C Tank Heating System |
|
|
Air Receiver Pressure Vessel Re-Rating in accordance with ASME and National Board (NBIC) Requirements |
|
|
Boiler Door Extraction Mechanism. Developed to withdraw heavy doors with deep refractory liner attached. |
|
|
Subsea Production Flowline Pig Launchers and Receivers for White Rose Project (Newfoundland): North Amethyst Pressure & Strength Design to ASME B31.3 & ASME VIII Division 1; Lifting component design to Lloyd's Rules: Lifting Appliances in a Marine Environment and consideration of DNV 2.22; Anode Design to DNV B401 |
|
|
Turbine Blade Washing System for Pratt & Whitney Canada Pressure & Strength Design Validation and Modifications Pressure & Strength Design to ASME VIII Division 1 (2007), Fatigue Design to ASME VIII Division 2 (2007) |
|
|
Finite Element Analysis (FEA) of Fitting(s) for Canadian Registration with Alberta Boilers Safety Authority (ABSA) Finite element analysis performed in accordance with ASME Code requirements and ABSA FEA Submission Requirements |
|
|
Exchanger Bundle: Finite Element Analysis and Code Calculations for validation to ASME Section VIII Division 1 UHX code requirements. |
|
Multistage Flash (MSF) Desalination Vessel, 22 Tubular Exchanger Stages, weight 500 tons. Complete FEA Based Code Design Analysis, ASME Section VIII Div 1 |
|
|
Trident Enhancement Project Compression Chamber ( Vacuum Chamber ), Los Alamos National Laboratory, Los Alamos, New Mexico. Complete FEA-based code design analysis, ASME Section VIII Div 2 |
|
|
White Rose FPSO Process Vessels: Fatigue Analysis to BS 5500 |
|
|
White Rose FPSO Process Vessels: Explosion Analysis |
|
Parametric FEA of Reinforced FRP Piping Branch Connections |
|
|
Parametric FEA of Integral and Reinforced FRP Piping In-Line Connections |
|
Michelin Tire-Mold Steam Chamber Analysis |
|
Critical Review of Response of Piping Systems to Explosion Loads |
|
|
|
Sable Offshore Energy Project: Pipeline Impact Analysis |
|
Oxygen Saturation Unit: ASME Code Design |
|
ASME Code Pressure Vessel Design (numerous Vessels for destinations including North America, China, India) |
|
|
ASME Code Pressure Vessels for Mitsubishi Canada: Vaporiser Vessel Shown |
|
|
Cohasset/Panuke Independent Marine Riser Assessment |